История о том, как мы создавали индивидуальный дом, который в итоге стал
В момент выхода на рынок Резиденции XV у нас была идея — создать типовые проекты домов, которые мы будем строить по договору подряда. Стали разбираться и фантазировать — что же мы хотим строить? На руках у нас был земельный участок бизнес-класса, который находился в сосновом лесу и опыт строительства коттеджного поселка “Хрустальный”.
Тогда мы работали по такому принципу — продаем земельные участки и в подарок даем архитектора, который вместе с клиентами проектировал свой идеальный дом. Клиенту доставалась индивидуальная планировка, нам — контроль и единый архитектурный стиль.
Не могу сказать, что идея удалась Так как в стройке все закономерно — проекты корректируются, проекты меняются, но из того опыта мы вынесли 110 проектов индивидуальных домов. В общем, когда мы приступали к созданию Резиденции XV, мы вспомнили об этих проектах и решили — почему бы нам их не проанализировать и выбрать самый лучший.
И эта идея оказалась рабочей! То, что создавали сами клиенты — громко рассказывало об их потребностях и желаниях. Да, не всегда идеально. Да, не всегда ликвидно. Да, зачастую с лишними комнатами и коридорами. Но этот анализ нам помог понять мотив и психологию человека, который заезжает в новым дом — он совершенно не знает чего хочет и часто живет по привычкам предыдущей жилплощади.
Поэтому мы сели за стол и начали, как эксперты, создавать для человека максимально востребованный ликвидный продукт, который будет подходить многим. Даже при перепродаже, новая семья сможет легко адаптировать в нем свой быт.
Мы стали искать оптимальные решения:
- какой площади этот дом должен быть?
- в каком сегменте?
- на кого он должен быть рассчитан?
- как сделать так, чтобы его периметр был абсолютно модульным, а внутри можно было делать разные вариации планировочного решения под различные состав семьи и сценарий жизни?
Вопросов много. Задач еще больше. Чтобы их решить мы пошли прокачивать нашу насмотренность: строительные компании Австралии, Канадские проекты, Европейская архитектура и образы жизни, Скандинавский стиль и его минимализм.
При помощи анализа и вдохновения архитектуры других стран мы решали первую задачу: создать типовой дом, отличительной чертой которого были модульность и универсальность планировочного решения. Чтобы его можно было адаптировать под различные сценарии жизни семьи и дом мог угодить как семьям с маленькими детьми, так и возрастному поколению, к которому приезжают внуки.
Это была первая задача. Вторая — определиться с архитектурой. Мы понимали, что любим:
- строить из кирпича по максимально проверенным технологиям;
- создавать ленивые дома, которые не требуют эксплуатации и обслуживания;
- встраивать большие панорамные окна и давать дому второй свет;
- строить дома более дорого сегмента, у которых есть продолжение в виде гаража, беседки, бани, СПА-зоны, ландшафтного дизайна.
Поэтому мы стали рассматривать варианты исключительно с долговечными фасадами, материалами простыми в изготовлении и самое главное легкими в последующей эксплуатации.
Мы всегда работали по принципу: “Дома — это не просто квадратные метры. Это окружение”. Поэтому, создавая концепцию важно было предусмотреть — хорошо ли дом садиться на участок? Достаточно ли приватности в его расположении? На какие стороны света смотрят окна? Какой из них вид? Есть ли в нем красивые визуальные виды?
Отвечая на все эти вопросы, мы для себя четко определили, что в рамках концепции будем использовать открытые фасады. А это значило, что нужно строить так, чтобы жилые комнаты не выходили в сторону основного центрального фасада.
Мы начали экспериментировать. И совместно с нашим архитектором Татьяной, у нас родился идеальный формат современного дома. Именно он лег в основу типового решения при строительстве поселка Резиденция XV.

Задача: создать максимально комфортный, но при этом не сильно большой по объему, наполненный различными функциями и сценариями жизни дом, который поможет его выделить среди остальных.
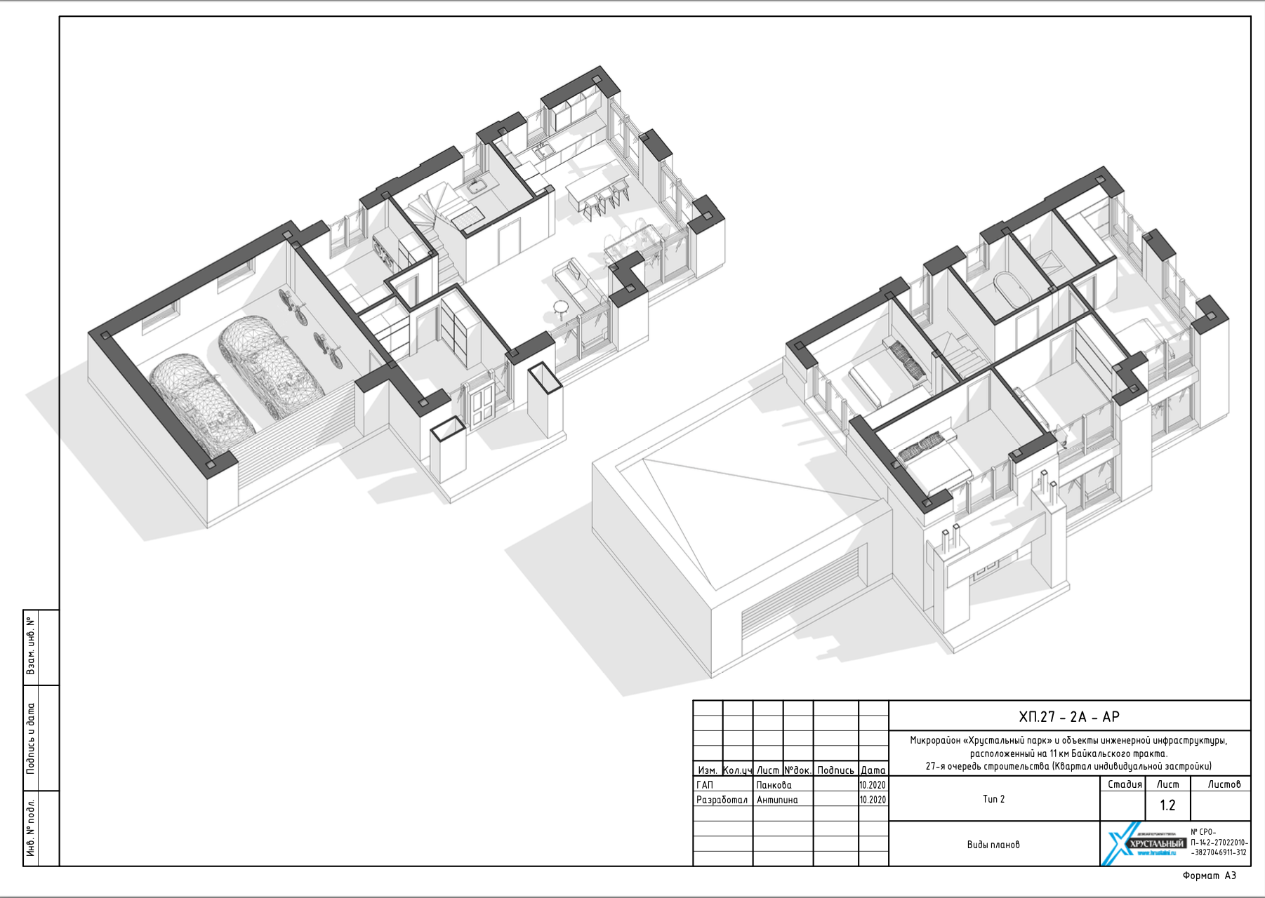
Именно поэтому мы взяли такую современную архитектуру в североевропейском стиле. Большой акцент делался на функциональности и эргономике планировочного решения. Поэтому дом имеет очень четкое зонирование. На первом этаже общее пространство, большая просторная прихожая с большой гардеробной.

Просторная кухня-гостиная, зонирована по пространству. Кухня немножко отделена от общей зоны отдыха и столовой. Здесь имеется собственная кладовая с окнами. Есть большой остров, для того, чтобы можно было готовить всей семьей, продолжая общение с гостями, а утром завтракать за островом, имея красивый вид из окон.
На первом этаже размещены кабинет или гостевая комната. В доме имеется большой просторный гараж на две машины с местами для дополнительного хранения вещей. Второй этаж приватный, но обладает изюминкой второго света в сторону гостиной. Три детские.
Большой санузел с окнами и постирочная размещены в зоне детской для того, чтобы было максимально комфортно и удобно стирать и разносить вещи по комнатам, проводить совместное время дистанцированно от родителей. Это позволяет дополнительно сплотить семью. С точки зрения фасадов использовались различные материалы отделки, включая кирпич ручной формовки, фиброцементные панели под штукатурку, а также под дерево.
Специально выбор пал именно на фиброцементные панели, которые позволяют создать уникальный архитектурный облик с деревянными элементами, но при этом обезопасить заказчика от потребности постоянно обслуживать дом и поддерживать его в необходимом виде. Такая архитектура позволяет сохранить дом в первозданном виде на долгие годы без дополнительных вмешательств.
Максимально долговечные, простые в обслуживании и привлекательные материалы. Кирпич ручной формовки добавляет аутентичности проекту, делает его тактильным, более приятным, интересным, добавляет разнообразие цвета и придает изюминку. В доме присутствует внешняя фасадная подсветка в современном формате не только с точечными светильниками, но и линеарные подсветки. Дом продолжается зоной террасы и ландшафтной группой при входе, которая дополняет концепцию.

Дом является неразрывной частью территории, поэтому он запроектирован с открытым фасадным решением. Перед домом не стоит забор, а используется красивая ландшафтная группа.
Для того, чтобы активно работать и продавать этот дом, мы занимались его упаковкой. У нас получилось, в рамках одного дома, не менее 4-5 вариаций планировочных решений. Плюсом к этому — мы разработали интерьерные вариации, сделали различные видеооблеты, предусмотрели работу с различными террасами, беседками, ландшафтным дизайном, окружением — все это вариация для того, чтобы можно было презентовать клиенту. Конечно же у нас разработан на этот дом конструктив, потому что мы его строили не один раз в разных вариациях с разными фасадными материалами, выходящими как в более серую цветовую гамму “антрацит”, так и в бежевые оттенки.

Этот дом вдохновил многих наших клиентов на свои индивидуальные проекты, которые мы в последующем реализовывали. Он считается у нас типовым решением в модификациях и является основным в “Резиденции — XV”. Дом подтвердил свою востребованность спросом на рынке.
___
Данный проект можно приобрести в нашем концепт-бюро. Если вы хотите разработать для себя индивидуальный дом или типовой дом для коттеджного поселка, мы работаем и с такими задачами.